EL BLOC DE PISOS D’EN MIQUEL

Construir aquest projecte va ser com fer un viatge en el temps, ja que l'objectiu principal era recuperar una masia típica catalana situada a la Seu d'Urgell feta de murs de pedra i sostres de bigues de fusta, que havia quedat coberta l'any 1951 per murs de càrrega de maó i bigues de formigó en una reforma.

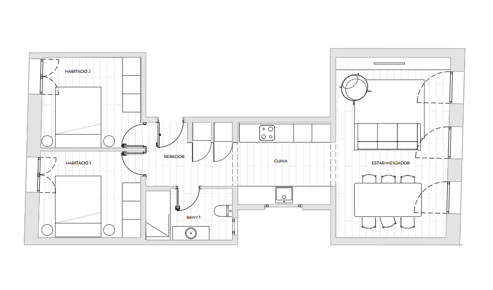
La missió era convertir-la en un bloc de pisos reformat, però mantenint l'essència del que havia estat durant l’any 1931.

Amb el projecte de reforma buscàvem donar una cara nova adoptant la figura de la balconera com a generadora d'una retícula organitzada generant unitat i modernitat a l'edifici.

Pel que fa a la sostenibilitat, tant per en Miquel com per a nosaltres, des del primer moment sabíem que era innegociable. Per aquest motiu vam recórrer a tècniques passives com ara l'obertura de grans finestrals, la col·locació del programa de dia a la façana sud i de petits balcons i el programa de nit a la façana nord. Amb aquestes mesures, vam aconseguir augmentar l'aïllament de les façanes i renovar les fusteries, reduint així un 50% el consum total d'energia de l'edifici i obtenint una etiqueta energètica A.

Estat inicial:

Client: Privat
Estat: en execució
Superfície: 1.300 m2

Siguiente
Siguiente

ES SINDICAT FELANITX