LA MASIA DEL LLEDÓ

Aquest projecte recau en una de les propostes que més ens agrada fer a Blanc: reconstruir un edifici històric per donar-li una segona vida, però mantenint l’essència del que ha estat al llarg dels anys.

La masia del Lledó és una masia històrica que data del segle XIV, situada al municipi de Castellbell i el Vilar, i que estava totalment deteriorada i abandonada. Quan la vam veure, sabíem que tenia quelcom especial, i vam decidir dur a terme la seva transformació per convertir-la en un refugi per a excursionistes, combinant tradició i modernitat.

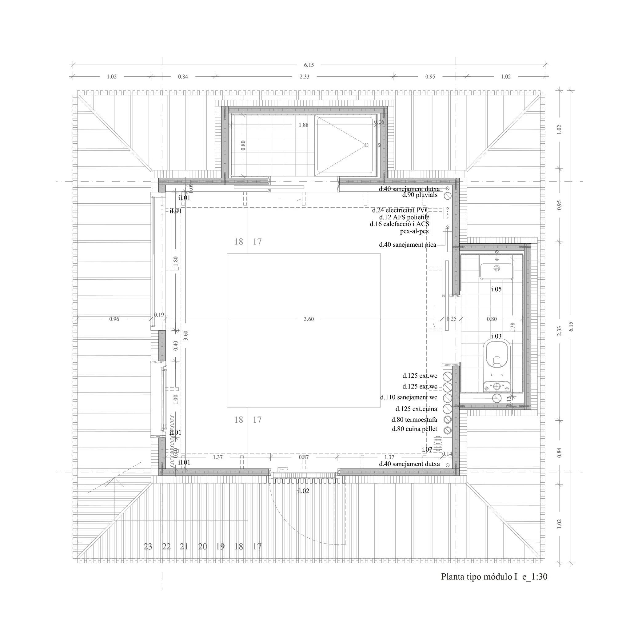
El projecte va consistir en crear dos mòduls de pernoctació per a excursionistes, compostos per 2 habitacions, 2 banys i una cuina a l’interior. A l'exterior, una piscina i un mirador per gaudir de les vistes. Volíem que la nostra intervenció fos compacta i respectuosa, adaptant-nos a la morfologia de la masia, però separant-nos dels seus murs per destacar la seva bellesa original. Els espais interiors els vam dissenyar buscant una sensació de refugi, amb simetria, proporcionalitat i una estructura de fusta vista que oferís calidesa i harmonia.

A l'exterior, volíem crear un contrast entre el pes i la materialitat dels murs de pedra antics i la lleugeresa del mòdul de nova construcció. Ens semblava important conservar el pas del temps, deixant que els espais exteriors humits i dinàmics mostressin la degradació natural dels materials.

Client: Privat
Estat: Avantprojecte
Superfíce: 255m2

Anterior
Anterior

QUEJANA CONTEMPORÁNEA

Siguiente
Siguiente

LA CASA DE LA CARME