LA CASA DE LA CARME

“Quan vaig conèixer i escoltar el projecte de la Carme, vaig tenir moltíssimes ganes de treballar-hi”- Ella va venir amb la idea d’edificar una casa adossada en una parcel·la estreta de l'Eixample on sentir-se a gust i que li recordés el poble d’on venia.

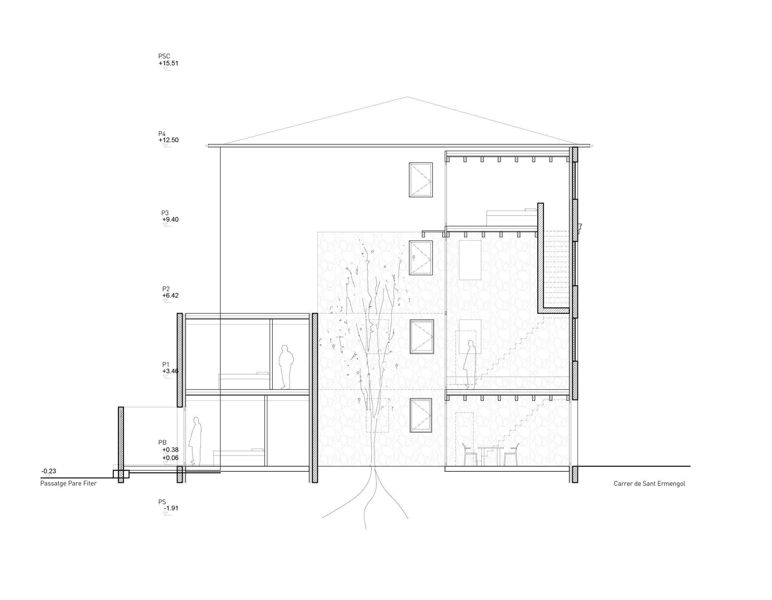
L'actuació principal del projecte va ser la creació d'un pati interior, al voltant del qual s’organitzaven les estances principals de l'habitatge i que allotjava un gran arbre, donant presència a la natura en tots els racons de la casa.

La façana principal de la casa buscava alinear-se amb les construccions veïnes, tal com l'urbanista Joan Bergós projectava les illes de la Seu d’Urgell. En canvi, la façana sud buscava mantenir les volumetries disperses existents, característiques dels patis interiors de l'Eixample.

Client: Privat
Estat: Avantprojecte
Superfície: 140 m2

Anterior
Anterior

LA MASIA DEL LLEDÓ

Siguiente
Siguiente

CA SES MONGES